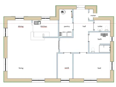
Water places consumption Meter In the meter there is normally the water, electricity and gas income distributed by the government. In some countries there is a box outside the house with these elements. I decide not to use it but use the pantry for it. Toilet In the toilet there will be the toilet and a fountain. Both are cold water. Bathroom In the bathroom there is a toilet with only cold water. There is a shower and a washbasin, both with warm and cold water. Pantry In the pantry there is a washing machine with cold water (perhaps warm water so it costs less to warm it in the washing machine). A dryer what gives lukewarm water. There is a boiler with an input of cold water and transports it to the roof to heat the water by a collector and transports it to the kitchen, bathroom, floor heat and possible to the washing machine. Also I use this room for the income of the water company. Kitchen In the kitchen you need warm and cold water. There is a possibility that the kitchen moves to the dining room with a cook island. Other Perhaps outside a water point for the garage, the terrace and the veg (sprinkle system).
articles
next
Green Fluid Art 4 Studio
prev